| (812) 467-86-44 | info@scad-soft.ru

МОНОЛИТ

Проектирование монолитных ребристых перекрытий
SCAD МОНОЛИТ

Оформить заказ на приобретение Программы сателлиты МОНОЛИТ

Заказать

                                    

                                       22 000 руб.

Система расчёта и проектирования МОНОЛИТ работает с ж/б монолитными ребристыми перекрытиями, которые сформированы на основе плит и балок с упором на колонны или стены. Программа поможет рассчитать и спроектировать конструкции, основываясь на официальных нормах и требованиях. Документы, которые учтены в проектах: 

  • СНиП 2.03.01-84*. ГОСТ 21.501-93,
  • ДСТУ Б А.2.4-7-95, ГОСТ 21.101-97,
  • ДСТУ Б А.2.4-4-99, ГОСТ 7473-94,
  • ДСТУ Б В.2.7-96-2000, ГОСТ 14098-91,
  • СНиП 52-01-2003,
  • СП 52-101-03,
  • СП 63.13330.

 
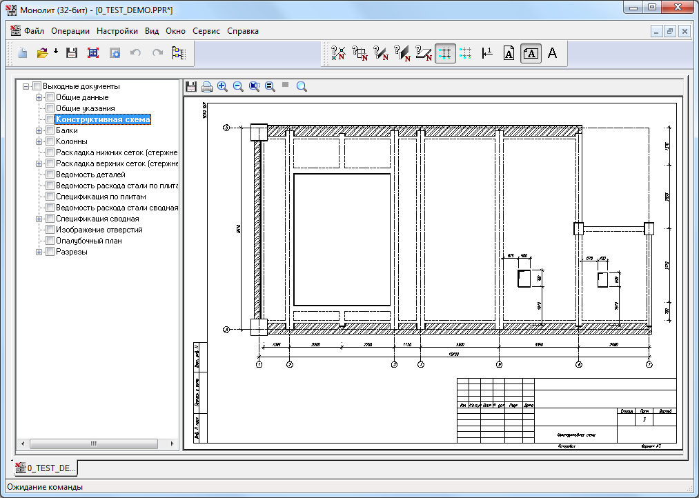
Схемы перекрытия 

Главная схема перекрытий создаётся на основе пронумерованных узлов на строительной сетке. Узлы образуются там, где есть пересечения элементов конструкции перекрытия. Как правило, это могут быть колонны, балки или стены. На конечной границе балок устанавливают плиты перекрытия одного размера по толщине. 

Балки делятся на две группы: главные и второстепенные. К главным относят балки, которые берут основную нагрузку от второстепенных, установленных относительно главных под углом 90 градусов. Второстепенные принимают равномерно распределённую нагрузку от плит перекрытия. 

В качестве опор принято считать стены или колонны с монолитным каркасом. В качестве материалов опорной стены должны быть использованы: 

  • Кирпич, предусматривающий безмоментное опирание;
  • Бетон, который монолитно скрепляется с перекрытием.
Главное условие — гарантия жёсткого сопряжения балок и плит с опорой. Несущие модули могут быть установлены эксцентрично относительно осей, в которых размещены узлы сетки.

 
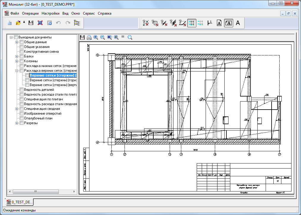
Сетки и каркасы 

Режим предполагает использование отдельных стержней в процессе армирования. Можно также использовать сварные конструкции — сетки и каркасы с точечной сваркой на стержнях.

 
Итоги 

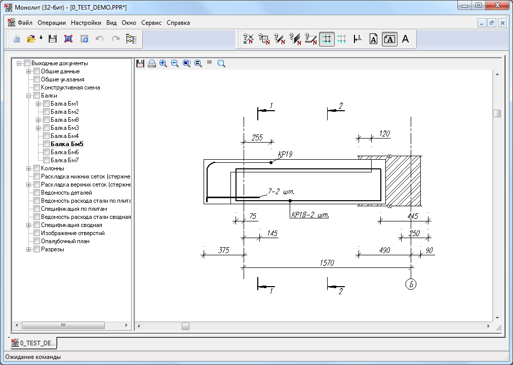
  • Результат процесса работы в программе предоставляется пользователю в качестве практичных схем, чертежей и планов с подробным описанием каждого элемента.
  • Чертежи с подробными описаниями конструкций под бетонируемые объекты;
  • Подробные планы арматурных плит со встроенной сеткой;
  • Чертежи балочной системы;
  • Схемы сварных конструкций;
  • Краткое описание и затраты на детали, балки и плиты;
  • Характеристики этих элементов;
  • Примечания.

Документы 

Вывод информации на документы в А3 и А4 формата для печати на принтере, а также на Plotter. Формат файлов подходит для импорта в DXF, для использования и редактирования в программе AutoCAD.

Удобное взаимодействие


Продукт предназначен для работы в среде Windows, включая привычную для пользователя компоновку и диалоговые окна. Настройте программу под свои задачи, выбирая единицы измерений, настраивайте каталоги, язык, формат данных и даже стиль оформления. .

Help (Справочная информация)

Программный продукт имеет в составе подробную справочную информацию, которая включает в себя как описание пользовательского интерфейса, так и правил работы с самим продуктом.

Cookie-файлы
Настройка cookie-файлов
Детальная информация о целях обработки данных и поставщиках, которые мы используем на наших сайтах
Аналитические Cookie-файлы Отключить все
Технические Cookie-файлы
Другие Cookie-файлы
Мы используем файлы Cookie для улучшения работы, персонализации и повышения удобства пользования нашим сайтом. Продолжая посещать сайт, вы соглашаетесь на использование нами файлов Cookie. Подробнее о нашей политике в отношении Cookie.
Понятно Подробнее
Cookies